Nouveauté
LEGRAND Tableau électrique encastré 1 rangée 12 modules avec porte métal blanche - 001531
- Réf. 123Elec : LEG001531
- Réf. Fabricant : 001531
- Paiement 100 % sécurisé
- Large choix de modes de livraison
- Expédition offerte dès 250€ TTC d'achat
Besoin d’aide ?
À votre écoute au 04 81 12 00 80
ou par email
Produits complémentaires
-
LEGRAND DX3 Interrupteur différentiel 40A 30mA type AC 230V - 411611
- Réf. 123Elec : LEG411611
- Réf. Fabricant : 411611
-
Offre spéciale
LEGRAND DNX3 Disjoncteur 16A Ph+N courbe C 4.5kA 230V - 406774
- Réf. 123Elec : LEG406774
- Réf. Fabricant : 406774
-
LEGRAND Prise modulaire 2P+T 16A 2,5 modules - 004280
- Réf. 123Elec : LEG004280
- Réf. Fabricant : 004280
Présentation
LEGRAND Tableau électrique encastré 1 rangée 12 modules avec porte métal blanche - 001531
Ce tableau encastré Legrand est idéal pour une installation discrète et harmonieuse, tout en facilitant l'accès à votre réseau électrique.
- Ce coffret électrique encastré Legrand est fourni avec sa porte en métal, garantissant ainsi une protection optimale de vos équipements électriques.
- La porte réversible de ce tableau électrique vous offre une flexibilité d'installation adaptée à vos besoins spécifiques.
- Conçu pour s'intégrer dans des murs pleins, briques ou cloisons sèches, ce coffret électrique 1 rangée est parfait pour vos projets résidentiels et petits tertiaires.
- Norme NF
- Norme CE
- Garantie 2 ans
Descriptif
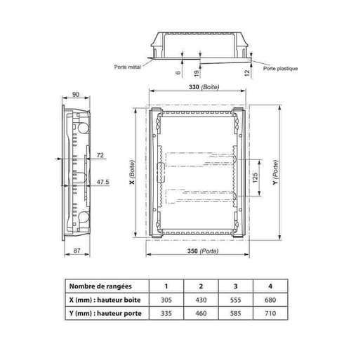
Caractéristiques techniques de ce tableau électrique encastré Legrand :
- Référence fabricant : 001531
- Marque : LEGRAND
- Type de tableau : tableau nu
- Nombre de rangées : 1
- Type de pose : encastré
- Largeur : 330mm
- Hauteur : 305mm
- Épaisseur : 90mm
- Indice IP : IP30
- Indice IK : IK07
- Couleur : blanc RAL 9003
- Matière : Acier
- Capacité du tableau (en nombre de modules) : 12 modules
- Auto-extinguibilité : tenue au fil incandescent 750° conforme à la réglementation des ERP
Caractéristiques e-catalogue Legrand :
- Fiche technique tableau électrique encastré réf. 001531
- Notice technique tableau électrique encastré réf. 001531
Avis clients
Aucun avis sur ce produit pour le moment
Questions & Réponses
Aucune question
Ces produits peuvent vous intéresser
-
LEGRAND DX3 Interrupteur différentiel 40A 30mA type AC 230V - 411611
- Réf. 123Elec : LEG411611
- Réf. Fabricant : 411611
39,30 € TTC32,75 € HT -
Offre spéciale
LEGRAND DNX3 Disjoncteur 16A Ph+N courbe C 4.5kA 230V - 406774
- Réf. 123Elec : LEG406774
- Réf. Fabricant : 406774
8,45 € -18,3% 6,90 € TTC7,04 € -18,3% 5,75 € HT -
LEGRAND Prise modulaire 2P+T 16A 2,5 modules - 004280
- Réf. 123Elec : LEG004280
- Réf. Fabricant : 004280
7,50 € TTC6,25 € HT -
14,95 € TTC12,46 € HT
Caractéristiques
| Référence fabricant | 001531 |
|---|---|
| Gencode EAN | 3245060015312 |
| Marque | Legrand |
| Type de tableau | Tableau nu |
| Nombre de rangées | 1 |
| Nombre de module(s) par rangée | 12 |
| Hauteur | 305mm |
| Largeur | 330mm |
| Épaisseur | 90mm |
| Type de pose | Encastré |
| Étanche | Non |
| Garantie | 2 ans |
| Fabrication française | Non |
| Label OFG (Origine France Garantie) | Non |
| NF | Oui |
| CE | Oui |





